Gèze

Ilot méditerranéen programme mixte gèze 01 / les fabriques euroméditerranée
VOIR

Programme

Logements collectifs, bureaux, centre médical, brasserie, terrasses partagées et jardins

Fiche Technique

COUT DES TRAVAUX 12,8 M€
SURFACE 8 305 m2 SDP
MAITRE D’OUVRAGE CONSTRUCTA / SCCV GEZE 01
MAITRE D’OEUVRE MARCIANO Architecture
PARTENAIRES Structura, Convergence, Puya, Apave, Betem, Alpes-Contrôle
Chef de projet Alexandre TEISSERENC
Images Pietro Bellucci

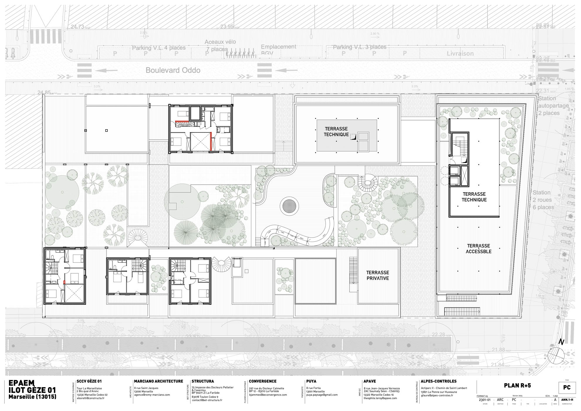
Notre proposition d’aménagement de l’îlot GEZE 01 s’adosse à la fois, à une analyse du contexte urbain existant, mais également à un travail d’inscription dans les dynamiques des intentions urbaines de l’extension d’Euroméditerranée. Il s’agit d’abord d’un travail de couture entre des territoires constitués (la Cabucelle et le boulevard Oddo) et des parties de ville en transformation. Nous avons souhaité, avec ce projet, nous inscrire dans les temporalités d’un territoire en mutation, et offrir pour le quartier une programmation mixte, constituée de logements, de bureaux, d’activité et d’espaces partagés et ouverts sur le quartier (jardins, Brasserie et terrasses). Des percées Nord-Sud permettent de relier les espaces publics au cœur d’îlot, ces failles ouvrent le projet sur le quartier et laissent entrevoir le paysage intérieur. Ces jardins en restanques poursuivent l’esprit des jardins de faubourg du Bd Oddo. Le travail sur la matérialité affirme l'idée d'inscription du projet dans son territoire. Nous souhaitons ainsi décliner toute une palette de matières qui s'inscriront dans cette volonté de raconter un territoire à la fois urbain mais fortement marquée par son identité méditerranéenne. Nous avons imaginé une structure en béton bas carbone, dont une grande partie en poteau poutre permettra un remplissage en matériau biosourcé (brique de terre cuite ou brique de chanvre), ainsi que des enduits naturels ocres. Bien que situé à Marseille mais couverts au Sud par les bâtiments, les jardins de l’îlot Gèze 01 profitent d’une situation particulière, fraîche et ombragée. Au regard de cette spécificité, nous proposons de jouer sur les subtiles nuances que propose la flore méditerranéenne en installant des espèces adaptées à la fois à cet ombrage et à un certain degré de sécheresse. Enfin, les logements ainsi que les bureaux seront tous traversants et ventilables naturellement, afin d’offrir un confort maximal en périodes chaudes.


Gèze - Marseille 15ème | Architecte Marseille

Gèze - Marseille 15ème | Architecte Marseille

Gèze - Marseille 15ème | Architecte Marseille

Gèze - Marseille 15ème | Architecte Marseille

Gèze - Marseille 15ème | Architecte Marseille

Gèze - Marseille 15ème | Architecte Marseille

Gèze - Marseille 15ème | Architecte Marseille

Gèze - Marseille 15ème | Architecte Marseille

Gèze - Marseille 15ème | Architecte Marseille

Gèze - Marseille 15ème | Architecte Marseille

Gèze - Marseille 15ème | Architecte Marseille

Gèze - Marseille 15ème | Architecte Marseille

Gèze - Marseille 15ème | Architecte Marseille

Gèze - Marseille 15ème | Architecte Marseille

Gèze - Marseille 15ème | Architecte Marseille

Gèze - Marseille 15ème | Architecte Marseille