Ilot 25c sainte marthe / le murillo

Quartier mirabilis
VOIR

Programme

49 logements, un jardin partagé
SDP 2841.00 m
Livraison : Janvier 2026
Cout des travaux : 4 M€
Photos : Lisa Ricciotti

Fiche Technique

Maitre d’ouvrage :
CONSTRUCTA

Maitre d’œuvre :
MARCIANO Architecture / Rémy MARCIANO

Chef de projet :
Loris AUGE

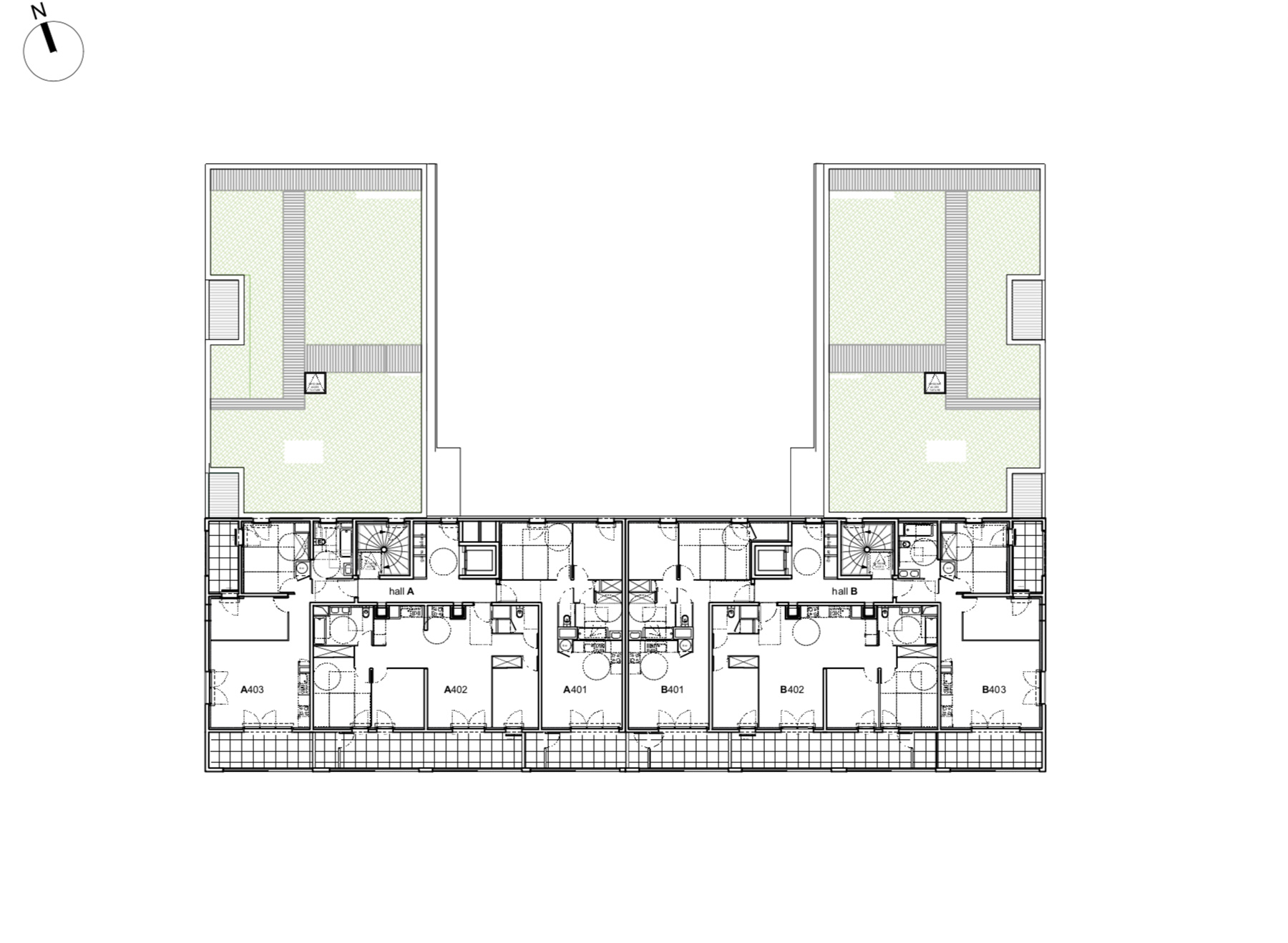
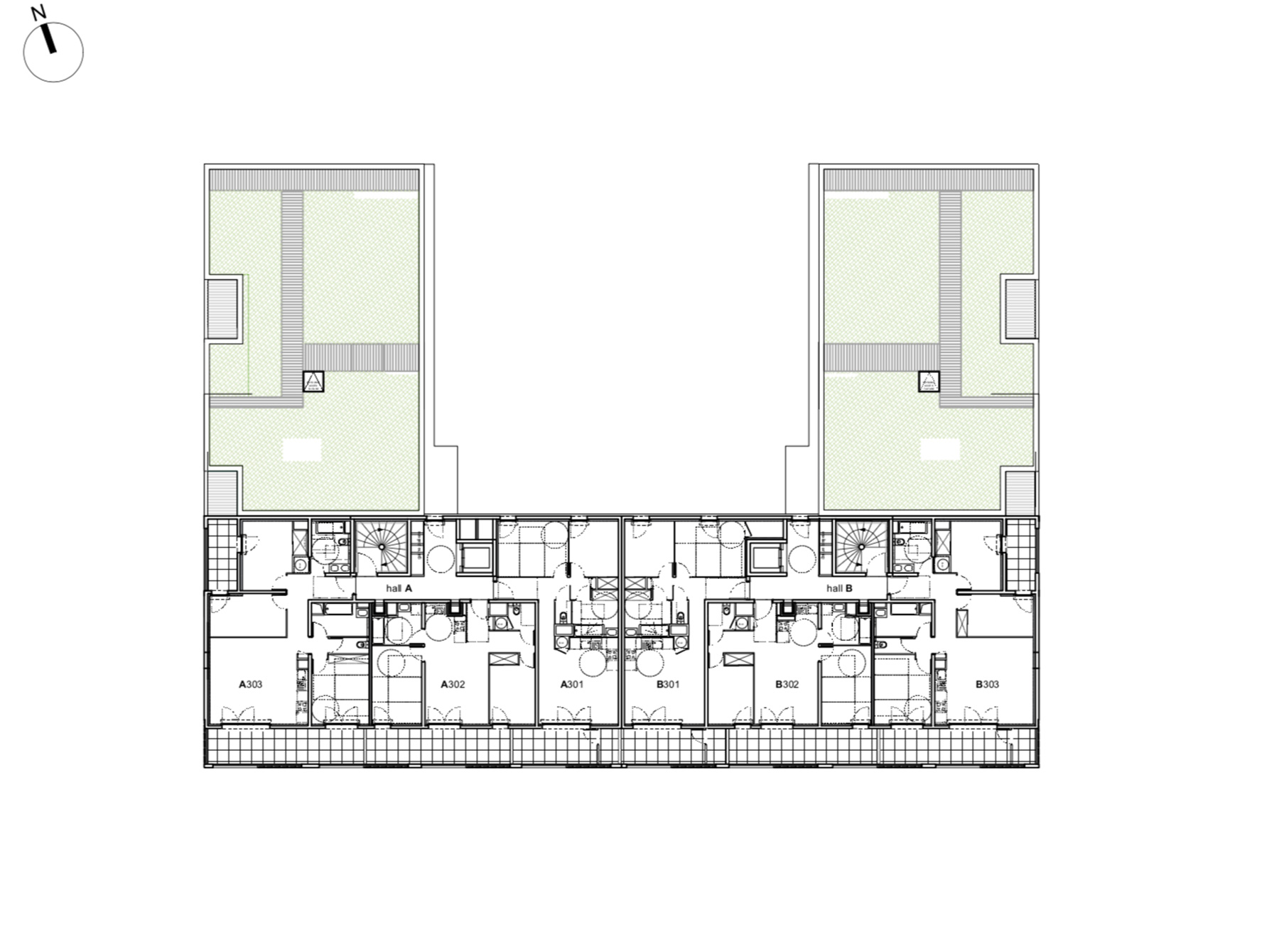
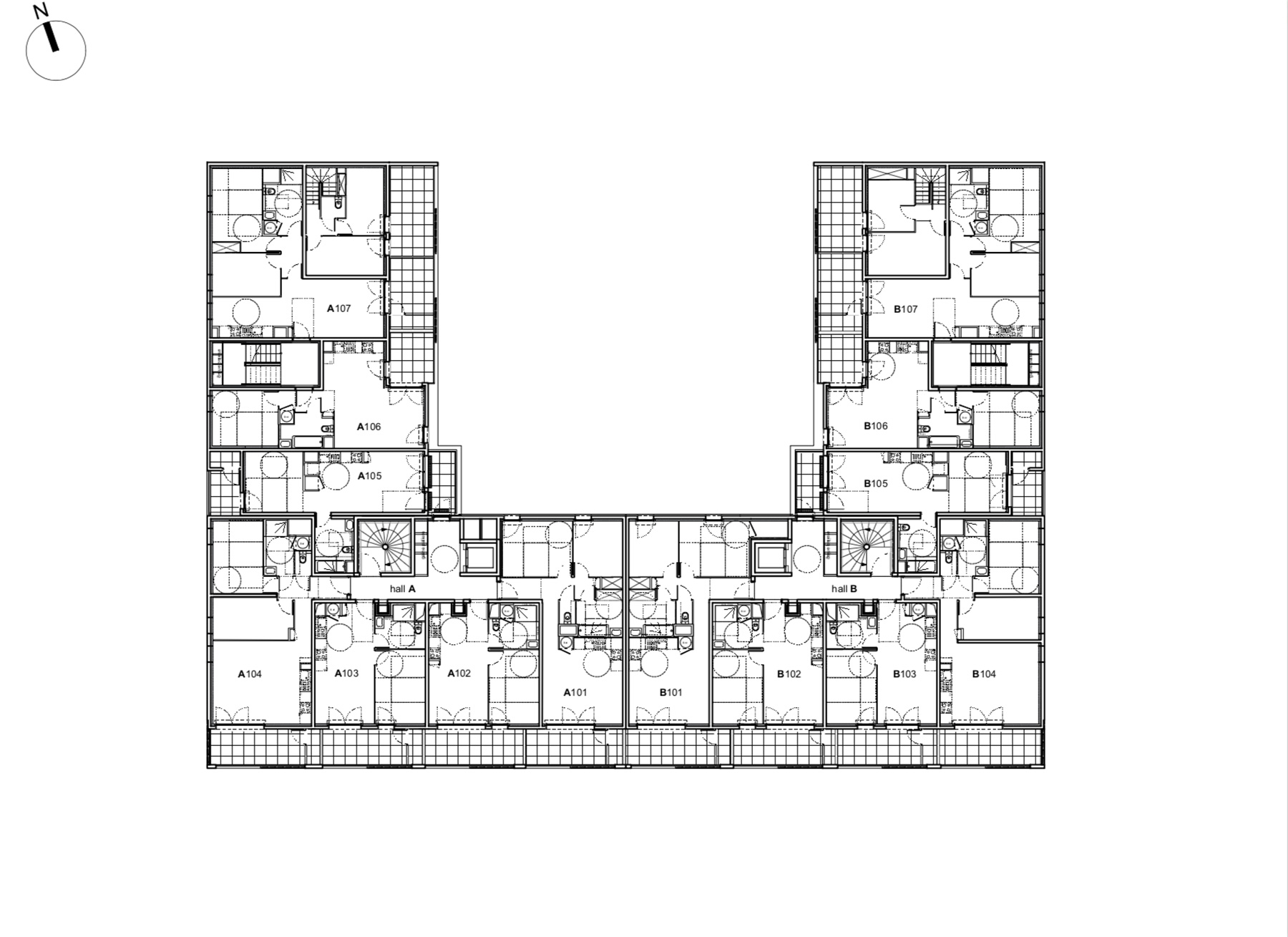
L’îlot 25C s’installe au cœur du quartier Mirabilis comme une pièce fondatrice, un repère autour duquel s’articule la nouvelle trame urbaine. Sa position centrale en fait un pivot, un lieu qui oriente et structure, un socle pour l’identité renouvelée du quartier. L’ensemble se compose d’un bâtiment principal en R+4 sur l’avenue au Sud, prolongé de deux ailes en R+2 qui dessinent une figure en U ouverte vers la colline Mirabilis. Dans son creux, le bâti accueille un jardin partagé par l’ensemble des habitants ; lieu de pose, d’échange, les courbes des tracés contrastent avec l’architecture du projet. Cette géométrie maîtrisée, associée à une épaisseur bâtie mesurée, permet l’organisation de logements traversants, baignés de lumière, offrant deux à trois orientations et une véritable respiration intérieure.
Le projet puise dans la mémoire marseillaise et méditerranéenne, non pour la reproduire, mais pour la réinterpréter avec exigence et sensibilité. Ici, dans les quartiers Nord, subsistent les traces du paysage bastidaire, agricole, minéral. Cette présence diffuse nourrit l’écriture architecturale : les façades alternent pleins et vides dans un rythme qui évoque, les murs de pierre des jardins voisins. Les teintes claires, la matérialité minérale, les loggias profondément creusées composent un langage sobre et puissant, où la lumière devient matière et la façade, un filtre habité.
L’art de vivre méditerranéen s’exprime pleinement dans la générosité des espaces extérieurs. Les terrasses de 2,50 m de profondeur prolongent les logements vers le paysage, invitant à habiter dehors autant que dedans. Les claustras en brique claire, intégrés dans la façade, orchestrent un jeu d’ombres et de transparences, offrant à la fois protection solaire, intimité et porosité visuelle. Ils transforment la lumière en un élément vivant, changeant, qui accompagne les usages et enrichit les perceptions. Au fil de la journée, les ombres portées sculptent les volumes et renforcent le sentiment de confort, de refuge, de domesticité ouverte sur le climat. À la nuit tombée, la façade se métamorphose : les percements deviennent des lanternes, révélant la vie intérieure et donnant à l’îlot une présence douce et vibrante dans le paysage urbain.
Ce projet affirme une architecture engagée, ancrée dans son territoire, attentive aux usages et aux héritages, mais résolument tournée vers une manière contemporaine d’habiter la Méditerranée.


Ilot 25c sainte marthe / le murillo - Marseille | Architecte Marseille

Ilot 25c sainte marthe / le murillo - Marseille | Architecte Marseille

Ilot 25c sainte marthe / le murillo - Marseille | Architecte Marseille

Ilot 25c sainte marthe / le murillo - Marseille | Architecte Marseille

Ilot 25c sainte marthe / le murillo - Marseille | Architecte Marseille

Ilot 25c sainte marthe / le murillo - Marseille | Architecte Marseille

Ilot 25c sainte marthe / le murillo - Marseille | Architecte Marseille

Ilot 25c sainte marthe / le murillo - Marseille | Architecte Marseille

Ilot 25c sainte marthe / le murillo - Marseille | Architecte Marseille

Ilot 25c sainte marthe / le murillo - Marseille | Architecte Marseille

Ilot 25c sainte marthe / le murillo - Marseille | Architecte Marseille

Ilot 25c sainte marthe / le murillo - Marseille | Architecte Marseille

Ilot 25c sainte marthe / le murillo - Marseille | Architecte Marseille